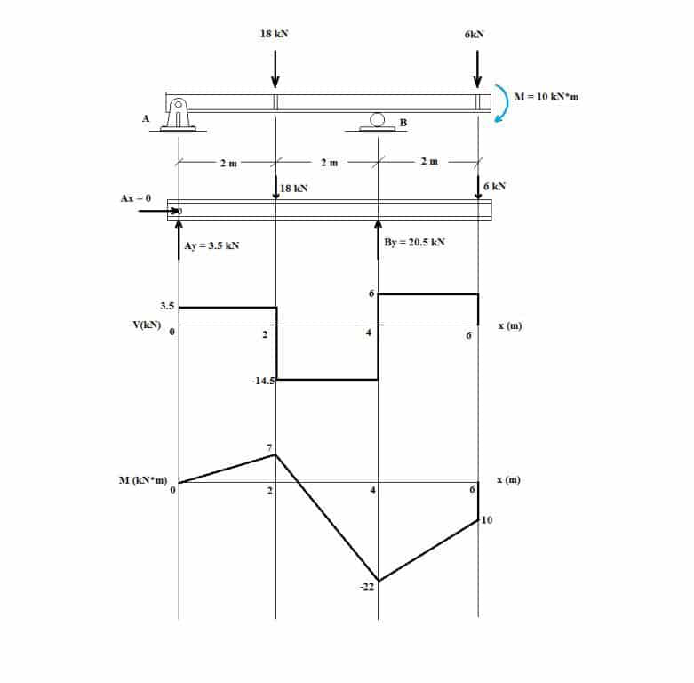
Why it is Important to Perform Structural Analysis
Stress–strain analysis - Wikipedia
Stress–strain analysis (or stress analysis ) is an engineering discipline that uses many methods to determine the stresses and strains in materials and structures subjected to forces . In continuum mechanics , stress is a physical quantity that expresses the internal forces that neighboring particles of a continuous material exert on each other, while strain is the measure of the deformation of the material.
Original link
Structural analysis - Wikipedia
Structural analysis is the determination of the effects of loads on physical structures and their components . Structures subject to this type of analysis include all that must withstand loads, such as buildings, bridges, aircraft and ships. Structural analysis employs the fields of applied mechanics , materials science and applied mathematics to compute a structure's deformations , internal forces , stresses , support reactions, accelerations, and stability . The results of the analysis are used to verify a structure's fitness for use, often precluding physical tests . Structural analysis is thus a key part of the engineering design of structures .
Original link
What is the Structural Analysis
Structural analysis is a process to find out the response i.e. moment, stress, strain, deflection etc. of a member of a structure under loads.
Original link
The Importance Of Finite Element Analysis For Structural Industries
Isn’t it a great to understand the physical properties of a material> Well, this can be made possible through the method of FEA.
Original link
Understand Structural Analysis and Its Importance
Structural stress analysis needs to be performed with the use of the latest softwares and industrial codes and standards to avoid the structural failure.
Original link