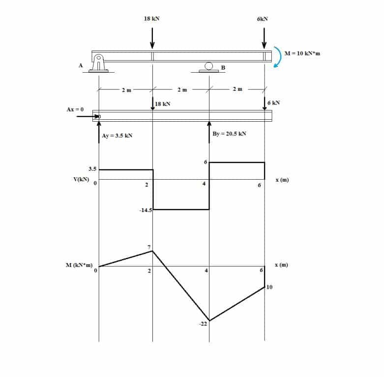
Understand Structural Analysis and Its Importance
Check out the below-curated links that showcase the importance of structural and stress analysis to determine the cause and avoid structural failure.
What Is Structural Engineering & What Do Structural Engineers Do?
Ever wonder what exactly is structural engineering and what do structural engineers do? Well, wonder no more! Discover what it is we do.....
Original link
What is Structural Analysis? | SkyCiv Engineering
What is Structural Analysis? What are the types of Structural Analysis? Why is important? When can be performed?
Original link
Structural Analysis | What Is Structural Analysis | Load Acting on Structure
Structural analysis gives the details of size of foundation, column and beam, and reinforcement which are sufficient to carry the load acting on the structure.
Original link
Why Need Structural and Stress Analysis
Structural stress analysis needs to be performed to avoid the failure of the structure. Know how we provide structural analysis services with expert engineers to help you determine and avoid structural failure.
Original link
The Benefits of Using Structural Analysis
Engineers and architects must understand as much about their structures as possible. This helps them to design better models.
Original link
Structural analysis - Wikipedia
Pages for logged out editors learn more
Original link
Understanding Structural Analysis - Structural Engineering Software
To help you better understand the whole concept of structural analysis, we have put together some of the most essential elements of this process.
Original link
What is the Structural Analysis?
Structural analysis is a process to find out the response i.e. moment, stress, strain, deflection etc. of a member of structure under loads.
Original link