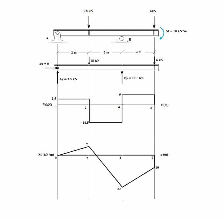
Understand Structural Analysis and Its Importance
Stress analysis of structure is important to avoid the failure of structures under any circumstances. Below I've curated a few links that highlight structural analysis and its importance.
What is Structural Analysis? | SkyCiv Engineering
What is Structural Analysis? What are the types of Structural Analysis? Why is important? When can be performed?
Original link
Structural Analysis | What Is Structural Analysis | Load Acting on Structure
Structural analysis gives the details of size of foundation, column and beam, and reinforcement which are sufficient to carry the load acting on the structure.
Original link
Importance of Structural and Stress Analysis
Structural stress analysis needs to be performed to avoid the failure of the structure. Know how we provide structural analysis services with expert engineers to help you determine and avoid structural failure.
Original link
Structural analysis - Wikipedia
Structural analysis is a branch of solid mechanics which uses simplified models for solids like bars, beams and shells for engineering decision making. Its main objective is to determine the effect of loads on the physical structures and their components .
Original link
Understanding Structural Analysis - Structural Engineering Software
To help you better understand the whole concept of structural analysis, we have put together some of the most essential elements of this process.
Original link
What is the Structural Analysis?
Structural analysis is a process to find out the response i.e. moment, stress, strain, deflection etc. of a member of structure under loads.
Original link